Червячные двухступенчатые мотор-редукторы. Серия MRT-RT: характеристики, устройство, принцип работы, стоимость.

MRT-RT

Назначение: двухступенчатые червячные мотор-редукторы MRT-RT собираются на базе редукторов MRT (TOS ZNOJMO). Универсальный корпус позволяет осуществить монтаж мотор-редуктора в любом положении. Область применения данных изделий устройства, требующие низкую скорость и высокий крутящий момент. Редукторы комплектуются дополнительными опциями: (выходные фланцы, одно и двухсторонние выходные валы, реактивные штанги).

 

Выходные обороты и мощность электродвигателей (кВт)

 

Конструктивные особенности

  • Типоразмер RT/MRT 030, RT/MRT 040, RT/MRT 050, RT/MRT 060, RT/MRT 070, RT/MRT080 - изготавливается из алюминиевого сплава, литого под давлением;
  • Типоразмер RT/MRT 100, RT/MRT120, RT/MRT150, RT/MRT180- изготавливается из серого чугуна с механической обработкой.

 

Технические данные

  • Модель MRT x RT: двухступенчатый мотор-редуктор, используемая для достижения больших передаточных отношений.

 

Замечания по условиям применения

  • Не допускается использование редуктора в качестве мультипликатор (повышающего угловую скорость выходного вал);
  • Не допускается использование редуктора при высоких моментах инерции выходной нагрузки;
  • Не рекомендуется использовать редуктор в качестве привода подъемных механизмов;
  • Высокая динамическая нагрузка может снизить срок службы редуктора;
  • При использовании редуктора при температуре ниже -30°C или выше 40°C следует использовать масло соответствующее нужной температуре;
  • Запрещено использовать редуктор в агрессивных химических средах;
  • Максимальный крутящий момент не должен превышать номинальное значение указанное в технических характеристиках более чем в два раза;
  • Срок службы редуктора зависит от сервис фактора (SF), и составляет 8700 часов при условии (f.s.≥1).

 

Редуктор MRT-RT

Редуктор MRT-RT

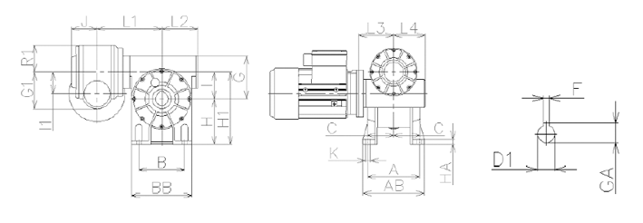
Габаритные и присоединительные размеры

 

Исполнение AAL-AAR

Исполнение AAL-AAR

ТИП
А
АВ
В
ВВ
D1H7
F
GA
G
G1
H
H1
HA
I
I1
J
K
L1
L2
L3
L4
MRT 30*40
84
100
70
96
19
6
21.8
70
51
71
111
8
40
30
31.5
7
103
57
55
46
MRT 30*50
96
114
85
112
24
8
27,3
84
51
85
135
10
50
30
31,5
9
113
65
55
46
MRT 50*80
147
180
140
180
35
10
38,3
128
84
142
222
13
80
50
49
11
164,5
95
75
65

 

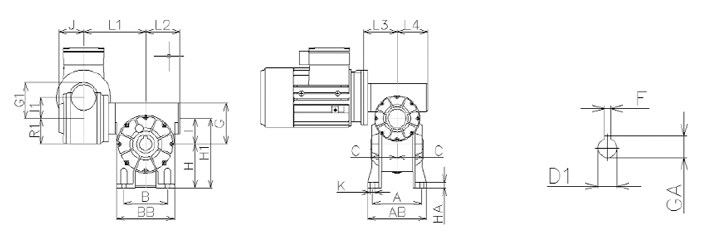
Исполнение BAL-BAR

Исполнение BAL-BAR

ТИП
А
АВ
В
ВВ
D1H7
F
GA
G
G1
H
H1
HA
I
I1
J
K
L1
L2
L3
L4
MRT 30*40
84
100
70
96
19
6
21.8
70
51
71
111
8
40
30
31.5
7
103
57
55
46
MRT 30*50
96
114
85
112
24
8
27,3
84
51
85
135
10
50
30
31,5
9
113
65
55
46
MRT 50*80
147
180
140
180
35
10
38,3
128
84
142
222
13
80
50
49
11
164,5
95
75
65

 

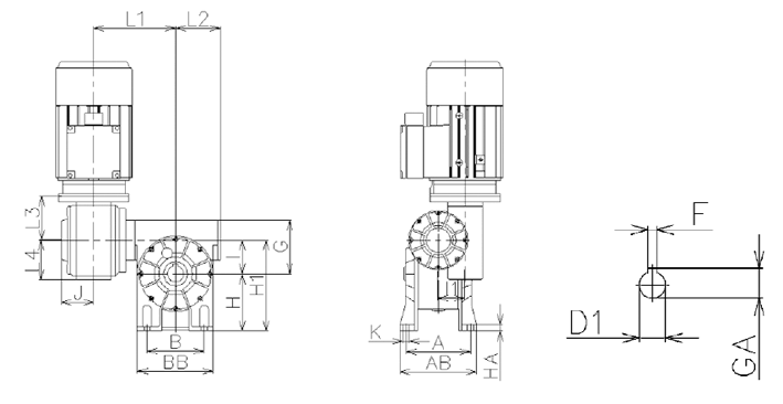
Исполнение VAL-VAR

Исполнение VAL-VAR

ТИП
А
АВ
В
ВВ
D1H7
F
GA
G
G1
H
H1
HA
I
I1
J
K
L1
L2
L3
L4
MRT 30*40
84
100
70
96
19
6
21.8
70
51
71
111
8
40
30
31.5
7
103
57
55
46
MRT 30*50
96
114
85
112
24
8
27,3
84
51
85
135
10
50
30
31,5
9
113
65
55
46
MRT 50*80
147
180
140
180
35
10
38,3
128
84
142
222
13
80
50
49
11
164,5
95
75
65

 

 

Односторонний выходной вал

Односторонний выходной вал

тип
MRT / RT
A
A1
C
Dh7
D1
L
L1
L2
F
M1
M2
kg
со стандартом DIN 332
I
II
28
56
89
1
14
17
30
120
87
5
M5
M5
0,1
0,15
40
80
132
10
19
23
40
182
130
6
M6
M6
0,3
0,4
50
97
158
10
24
28
50
218
157
8
M8
M8
0,55
0,75
60
118
185
5
25
30
60
250
183
8
M10
M8
0,7
0,9
70
120
191
10
28
35
60
261
190
8
M10
M8
0,9
1,25
80
138
205
5
35
40
60
270
203
10
M12
M8
1,5
2
100
150
234
10
40
46
80
324
240
12
M16
M12
2,4
3,2
120
170
264
10
45
51
90
364
270
14
M16
M12
3,4
4,6
150
218
323
10
55
62
100
433
328
16
M20
M16
6,1
8,1
180
262
377
10
60
68
110
497
382
18
M20
M16
4,8
11

 

Двусторонний выходной вал

Двусторонний выходной вал

тип
MRT / RT
A
A1
C
Dh7
D1
L
L1
L2
F
M1
M2
kg
со стандартом DIN 332
I
II
28
56
89
1
14
17
30
120
87
5
M5
M5
0,1
0,15
40
80
132
10
19
23
40
182
130
6
M6
M6
0,3
0,4
50
97
158
10
24
28
50
218
157
8
M8
M8
0,55
0,75
60
118
185
5
25
30
60
250
183
8
M10
M8
0,7
0,9
70
120
191
10
28
35
60
261
190
8
M10
M8
0,9
1,25
80
138
205
5
35
40
60
270
203
10
M12
M8
1,5
2
100
150
234
10
40
46
80
324
240
12
M16
M12
2,4
3,2
120
170
264
10
45
51
90
364
270
14
M16
M12
3,4
4,6
150
218
323
10
55
62
100
433
328
16
M20
M16
6,1
8,1
180
262
377
10
60
68
110
497
382
18
M20
M16
4,8
11

 

Варианты исполнения

Варианты исполнения

 

Выходные обороты и мощность электродвигателей (кВт)

 

 
© 2014 Редукторы, мотор-редукторы, устройства плавного пуска, преобразователи частоты